EFB Shredders (Double Cutter)
EFB Presses (Mono Worm)
EFB Shredding Press (Twin Drum)
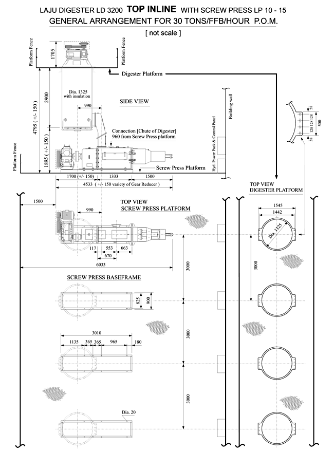
Screw Presses
Digesters
Ripple Mills
Vibrating Separators
Vacuum Dryers
Poly-Presses
Low & High Speed Aerators
Pumps
Machineries for POM & Sugar Mill
Quotation - LAJU Products
Installation
The manufacturer reserve the right to modify for alter the design of the machine that seem necessary without prior notice.
Home
Products
Contact
Up