Pengenalan Sistem Proses Tandan Kosong Sawit

Pada pabrik pengolahan minyak kelapa sawit, janjangan kosong buangan ( waste empty bunches ) merupakan salah satu bagian yang telah lama diabaikan. Dalam sistim tradisional, janjangan kosong buangan dibawa ke ruang-pembakaran ( Incinerator ) untuk dibakar dan abunya dipakai sebagai pupuk lahan pertanian. Dalam proses ini, sudah tentu minyak yang masih terkandung dan Inti yang masih terlekat dalam janjangan kosong ini lenyap terbakar semua. Selain itu, asap pembakaran juga menjadi salah satu sumber utama polusi udara yang sangat mengganggu kesehatan baik di lingkungan pabrik sendiri maupun di lingkungan sekitarnya.

Dewasa ini, proses ini telah direvolusionisir dengan WASTE EMPTY BUNCH RECOVERY SYSTEM sebagai perkembangan terakhir dalam industri pengolahan minyak sawit, WASTE EMPTY BUNCH RECOVERY SYSTEM memberikan pengujian secara sempurna dimana minyak dan inti tambahan dapat diperoleh kembali dari janjangan kosong buangan ini. Dengan sistim ini instalasi pembakar ( pembangunan Incinerator ) dapat ditiadakan, asap pembakaran yang menjadi sumber pencemaran dan polusi udara dapat dihindarkan sama sekali. Selanjutnya, sabut dan serat-serat kering hasil proses dari janjangan kosong ini dapat digunakan sebagai bahan bakar tambahan Ketel Uap untuk pembangkit daya, menjadi pupuk untuk lahan pertanian dan juga bisa diproses untuk membuat papan serpihan ( Chipboard ) atau makanan ternak.

Pengenalan

Sejalan dengan perkembangan teknologi, tandan kosong sawit buangan dapat di proses kembali dengan menggunakan Mesin Perajang LAJU ( EFB Shredder ) dan Kempa Ulir Mono ( EFB Press ) atau Kempa Cabik Ulir Dobel ( EFB Shredding Press).

Ampas hasil proses dari tandan kosong sawit yang di cobak-cabik dengan mesin Perajang & Kempa Ulir Mono atau Kempa Cabik Ulir Dobel LAJU dapat memperoleh keuntungan dan manfaat ;

  • Dapat digunakan sebagai bahan bakar tambahan ketel uap.
  • Dapat dijadikan pupuk, manfaat aplikasi kompos bioaktif TKKS dapat meningkatkan bahan organik tanah. Memperbaiki struktur tanah, meningkatkan NTK ( Nilai Tukar Kation ) & kemampuan mengikat air tanah. Serta meningkatkan efisiensi pemupukan dan mengurangi biaya pengangkutan.
  • Mengutip kembali buah yang masih melekat pada tandan kosong buangan, sehingga inti 0.5 - 1% dapat dikutip kembali serta memperoleh minyak yang mengandung dalam tandan kosong antara 0. 1 - 0.3 %.
  • Dapat diproses menjadi makanan ternak dan bahan baku untuk membuat papan kepingan (Chip board).
  • Menjaga kelestarian lingkungan pabrik, asap dari incinerator yang selama ini berupa polusi-udara yang mencemarkan lingkungan pabrik dapat diatasi.

Keistimewaan

  • Konstruksi mesin sangat kokoh dan sederhana, selain gampang di operasikan dan mudah perawatan, bahkan biaya operasi sangat rendah.
  • Mesin dirancang portable tanpa pondasi tetap, dapat di pindah dari lokasi ke lokasi dengan mudah sesuai kebutuhan.











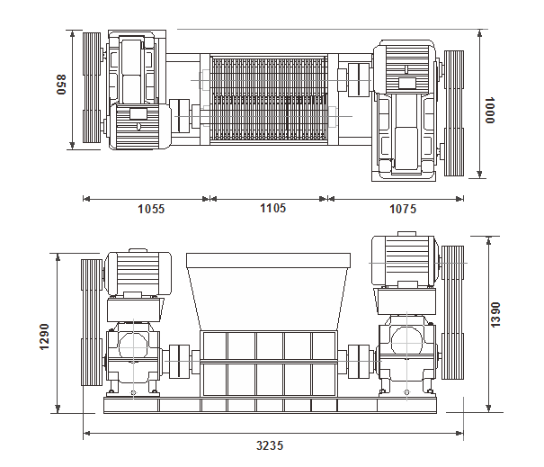
LAJU MESIN PERAJANG (EFB SHREDDER) LM - 8


Spesifikasi

Kapasitas
Jenis
Ukuran Pisau Potong
Jumlah Pisau Potong
Gigi Roda Pisau Potong
Ruang Pisau Potong
Material Roda Pisau Potong
Revolusi
Konsumsi Tenaga
Reduktor
Panjang Mesin
Lebar Mesin
Tinggi Mesin
8 - 9 Ton/Tandan Kosong/Jam
Horisontal Roda Pisau Potong Dobel
Diameter 285 mm x 14 mm Tebal
2 Baris x 28 buah
6 ( enam )
550 mm Lebar x 935 mm Panjang
Heat Treated Tool Steel
37 & 25 Rpm
37 kW/50 pK and 22kW/30 pK 4 Poles TEFC Motor 380V 50Hz
SEW MC3PLSF06 Rasio 40:1 & MC3PLSF04 Rasio 60:1 atau sejenisnya
3235 mm
1000 mm
1390 mm

LAJU KEMPA ULIR MONO (EFB PRESS) LEBP - 8


Spesifikasi

Kapasitas
Jenis
Ukuran Ulir Sekrup
Jumlah Daun Ulir
Material Ulir Sekrup
Revolusi
Konsumsi Tenaga
Reduktor
Panjang Mesin
Lebar Mesin
Tinggi Mesin
8 - 9 Ton/Tandan Kosong/Jam
Horizontal Ulir Sekrup Mono
Diameter 430 mm x 2745 mm Panjang
5 ( Five )
CrMoly with Hard Facing of Last Flight
16 - 18 Rpm
75 kW/100 pK 4 Poles TEFC Motor 380V 50Hz
SEW M3PSF60KPD Ratio 56 : 1 atau sejenisnya
3900 mm Approx.
1600 mm Approx.
1950 mm Approx.

LAJU KEMPA CABIK ULIR DOBEL LSP-8 ( EFB SHREDDING PRESS)

Spesifikasi

Kapasitas
Jenis
Ukuran Ulir Sekrup
Jumlah Mata Pisau ulir Sekrup
Material Ulir Sekrup
Pisau Potong Ekstern
Material Pisau Potong Ekstern
Revolusi
Konsumsi Tenaga
Reduktor
Panjang Mesin
Lebar Mesin
Tinggi Mesin
8 - 9 Ton/Tandan Kosong/Jam
Horisontal Ulir Sekrup Dobel
Diameter 475 mm x 725 mm Panjang
2 x 12 ( Dua Belas )
CrMoly with Hard Face Teeth
2 x 4 ( Empat )
Heat Treated Tool Steel
16 & 20 Rpm
75 kW/100 pK 4 Poles TEFC Motor 380V 50Hz
SEW M3PSF60KPD Ratio 56 : 1 atau sejenisnya
3950 mm
1470 mm
1340 mm

The manufacturer reserve the right to modify for alter the design of the machine that seem necessary without prior notice.