Mesin Perajang Tankos
Kempa Ulir Tankos
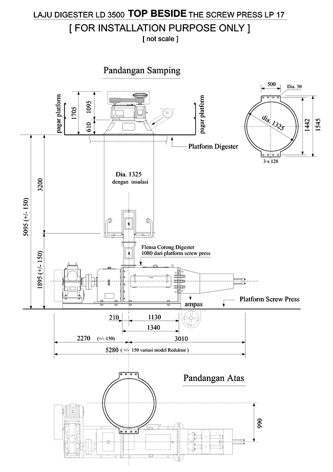
Kempa Cabik Tankos
Kempa Ulir Sekrup
Ketel Adukan
Mesin Merekah Biji
Saringan Minyak Sistem Getaran
Tangki Mengurangi Kadar Air Minyak Sistem Hampa Udara
Kempa Poli
Aerator Kolam Air Limbah
Pompa
Mesin & Peralatan PKS & Pabrik Gula
Daftar Harga Suku Cadang LAJU Produk
Instalasi
The manufacturer reserve the right to modify for alter the design of the machine that seem necessary without prior notice.
Home
Products
Contact
Up